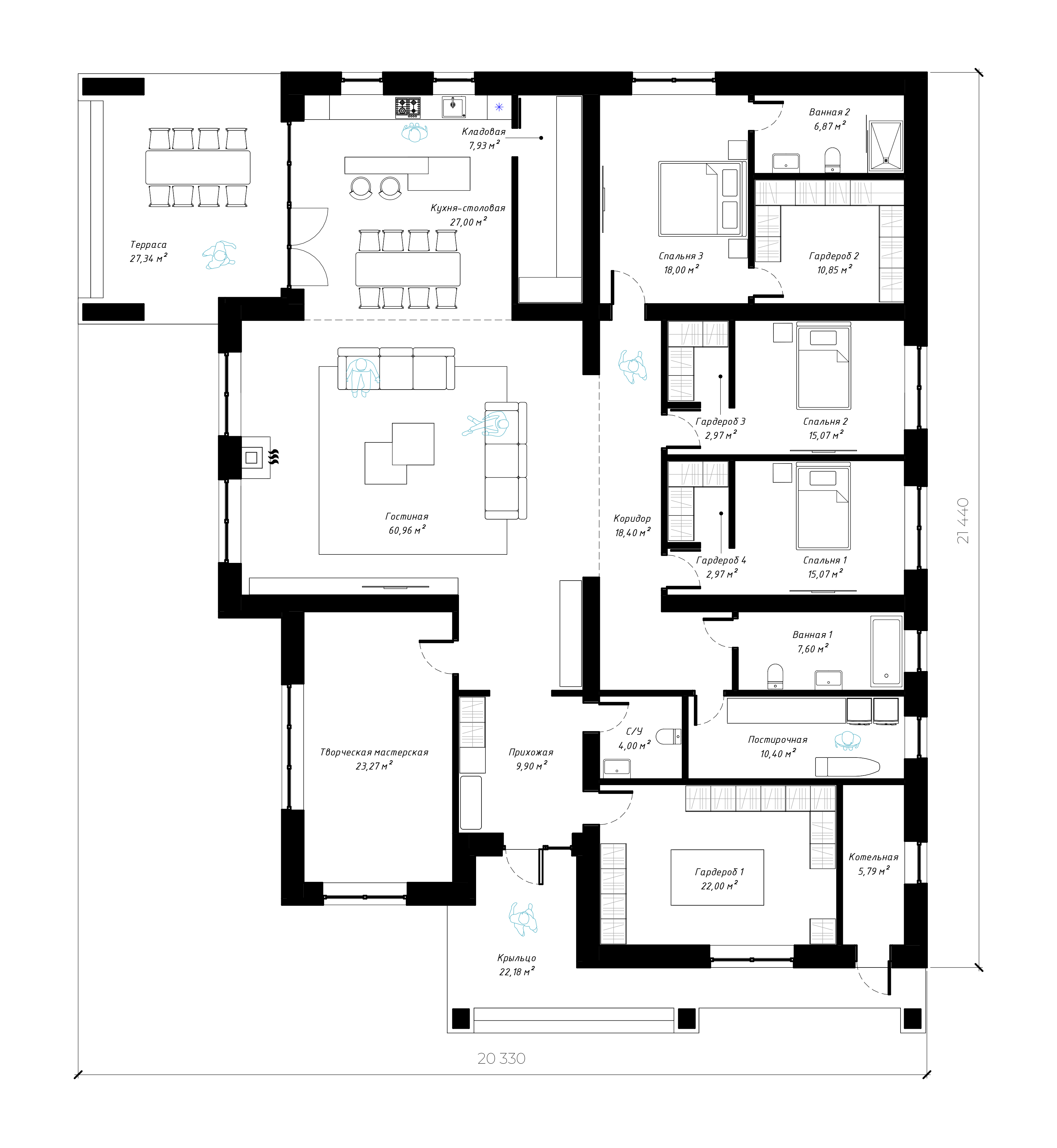
S48 - одноэтажный дом с большой гостиной
269,52 м2
Просчитать

S48

Одноэтажный дом с крытой террасой
О проекте
Стадии строительства
В доме:
  • Мастер-спальня
  • 2 спальни
  • Кладовая
  • Постирочная
  • Творческая мастерская
  • Гардероб
  • Гостиная
  • Кухня-столовая
  • с/у
  • Терраса
Фасады
S48



Тапочки

Останется внести тапочки

Павел Супоницкий
генеральный директор
Просчитать

Похожие дома

Просчитать
Основа — «коробка» дома
  • Устройство фундамента
  • Устройство оснований крылец и террас
  • Возведение ограждающих и несущих стен дома, перегородок
  • Монтаж перекрытий и кровли
Под чистовую отделку
  • Утепление стен
  • Утепление перекрытий и фундамента
  • Отделка фасада
  • Установка окон, входных дверей и гаражных ворот
  • Устройство декоративных конструкций
  • Устройство инженерных сетей внутри дома (включая котельное оборудование, вводные и распределительные устройства электропитания)
  • Оштукатуривание стен
  • Устройство черновых полов
Под ключ
  • В этой стадии, дополнительно к предыдущей, мы создаем интерьер вашего дома согласно разработанному дизайн-проекту
Основа — «коробка» дома
Под чистовую отделку
Под ключ