S23 - одноэтажный дом с террасой
122,42 м2
Просчитать

S23

Отличная планировка, помноженная на полноценную комплектацию и гарантию 12 лет от Ультра Эс — прекрасная возможность получить качественный дом и ни о чем не беспокоиться

всего за 12 000 000 рублей!

О проекте
Стадии строительства
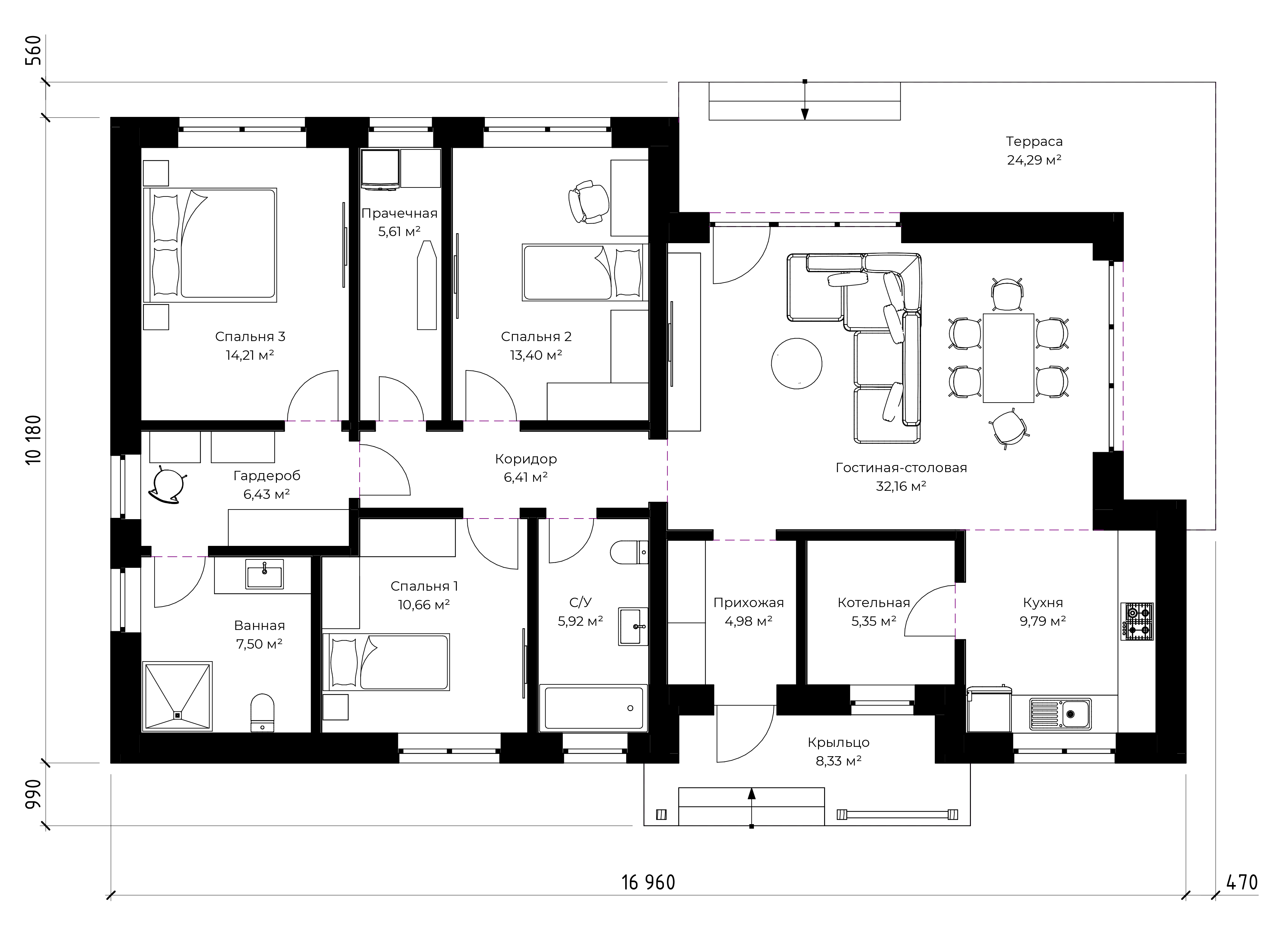
В доме:
  • Мастер-спальня
  • 2 спальни
  • Гостиная-столовая
  • Постирочная
  • Кухня
  • Ванная
  • с/у
  • Терраса (опция)
Фасады
S23

Обратите внимание на S23.

Планировка с ярко выраженной зональностью, что очень важно, если жить в доме постоянно. Просторная котельная позволит разместить кладовую в этом же помещении. Кухня отделена от помещения гостиной, но частично. Это позволяет почувствовать большой объем и уют одновременно. Также, при приготовлении пищи, вы не столкнетесь с неожиданным перемещением запахов. Гостиная позволяет исполнить несколько сценариев использования, включая установку камина. Гордость приватной зоны — мастер-спальня с будуаром. Вы не разбудите свою вторую половину, если воспользуетесь ванной или встанете пораньше и достанете одежду из комода. Все спальни изолированы друг от друга. Постирочная — также важный атрибут дома в наше время. Вы не только можете ухаживать, но и складировать здесь белье и одежду. Общий санузел выполняет несколько функций: для двух спален, для гостей и как хозяйственный.

Комплектация:

1. Для подъема на крыльцо предусмотреть две ступени (три подъема);            

2. Как фундамент принять ростверк 400х600(h) мм, включая защитный клык (необходимо для защиты конструкции утепления и отделки цоколя при вспучивании грунта) по буронабивным сваям d 300 мм, глубиной 2500 мм с использованием арматуры мерной, периодического сечения d 16 и бетона М 300 заводского изготовления;

3. Устроить пол из монолитного железобетона (плита 200 мм с двойным армированием);

4. Устроить элементы каркаса здания из монолитного железобетона (балки, перемычки, армопояса);

5. Ограждающие стены возвести из газоблока «Твинблок», шириной 300 мм;

6. Перегородки и внутренние стены возвести из кирпича эффективного М125 (необходимо для соответствия необходимым физическим и динамическим нагрузкам и гарантийным условиям);

7. Устроить кровлю скатную из металлочерепицы по деревянному основанию с вентзазором и антисептированием, металлочерепица типа «Ламонтерра», производства «Металл Профиль», Екатеринбург, толщина металла 0,5 мм по ГОСТ (данная толщина гарантирует (в отличии от толщины по ТУ) конкретную толщину и качество металла);

8. Установить капельники кровли (необходимо для устранения возможности попадания конденсируемой в вентзазоре воды в конструкцию подшивы);

9. Установить снегозадержатели;

10. Устроить вентканал котла изолированный из нержавеющей стали, остальные из полимерных комплектующих, производства Vilpe (Финляндия) или аналог по качеству. Устроить приточные клапана во всех жилых помещениях и котельной;

11. Устроить перекрытие потолка деревянное с пароизоляцией и подшивой 25 мм с разрежением 100 мм;

12. Предусмотреть вывод канализации, воды для полива из дома и ввод электропитания (устроить закладные детали в строительных конструкциях);

13. Устроить крыльцо из монолитного железобетона, с использованием арматуры мерной, периодического сечения d 12 и бетона М 300 заводского изготовления по буронабивным сваям, d300 мм, глубиной 2500 мм;

14. Произвести утепление ограждающих стен базальтовым утеплителем толщиной 100 мм, Rockwool (марка материала гарантирует отсутствие дефектов в процессе эксплуатации, таких, как появление пятен и отслаивание, т.к. имеет достаточную прочность на разрыв и стабильное качество);

15. Произвести отделку фасада декоративной штукатуркой (цвет - по выбору Заказчика), Планкеном натуральным (Сосна, сорт А-Б). Устроить декоративные элементы. Устроить подшиву кровли (обратите внимание, что в большинстве наших проектов, свесы кровли не менее 800 мм, что отлично выглядит и защищает стены) натуральным деревом (добавляет дому ценности), класса А-Б с окрашиванием (цвет - по выбору Заказчика);

16. Произвести монтаж системы водосбора из металлических комплектующих (стабильный материал, не выцветает и не издает звуков при нагреве или охлаждении);

17. Произвести утепление цоколя экструдированным пенополистиролом 50 мм;

18. Произвести отделку цоколя керамогранитом (стоимость1420 р/м2, по выбору Заказчика);

19. Входная дверь «Гардиан» ДС-10 (Бизнес-класс);

20. Облицевать крыльцо керамогранитом (стоимость 1800 р/м2, по выбору Заказчика);

21. Установить окна «Рехау» (с металлопластиковыми рамами 70  мм, пятикамерными) с тройным остеклением, рамы которых ламинированы снаружи, цвет - по выбору Заказчика;

22. Произвести утепление пола экструдированным пенополистиролом, толщиной 100 мм;

23. Оштукатурить стены всех помещений, кроме санузлов и котельной гипсовой штукатуркой  мелкодисперсионной;

24. Помещения санузлов, и котельной оштукатурить цементной штукатуркой;

25. Поверхностью пола является сама монолитная плита, а утепление находится снизу. Такая конструкция позволяет получить наиболее энергоэффективную схему эксплуатации;

26. Произвести монтаж системы отопления в составе: бойлер косвенного нагрева 150 л (позволяет всегда иметь необходимое количество горячей воды), котел газовый Protherm или аналог по качеству, теплые полы во всех помещениях (регулировка возможна в каждом помещении отдельно) или радиаторы с термоголовками во всех помещениях, по выбору Заказчика. Система передачи данных о состоянии котельного оборудования с возможностью управления удаленно по сотовой сети;

27. Водопровод внутренний, в том числе установка фильтрующих элементов. Скваженный насос частотным управлением (позволяет экономить электричество и подавать воду точно, в необходимом количестве, без скачков давления);

28. Электропроводка внутренняя включая: щиток с автоматическими выключателями (включая дифференциальную защиту), кабельная разводка, установочные и распаечные коробки (коммутация путем сварки). Ручная система переключения на генератор;

30. Устроить утепление перекрытия толщиной 200 мм;

31. Септик Септик "Урал-4 Био" + Технический колодец + Дренажный колодец 500 мм + ПРО (система принудительного отвода с помощью дренажного насоса);

32. Скважина для воды с дебетом не менее 1,3 м3;

33. Подключение дома к электропитанию подземным способом от уличного щита на участке;

34. Удалить строительный мусор с площадки.

35. Гарантия 12 лет.

Вот некоторые наши преимущества:

- ООО «Ультра Эс» (юридическое лицо, с кем мы предлагаем заключать договор) существует с 4 февраля 2004 года, поэтому мы точно знаем что будет через 12 лет;

- прямо сейчас, на нашем сайте размещены фотографии 82 частных домов, построенных в Свердловской области, что не на словах доказывает наш опыт;

Отличная планировка помноженная на полноценную комплектацию и гарантию 12 лет от Ультра Эс — прекрасная возможность получить качественный дом и ни о чем не беспокоиться всего за 12 000 000 рублей!

Предложение ограничено.

Тапочки

Останется внести тапочки

Павел Супоницкий
генеральный директор
Просчитать

Похожие дома

Просчитать
Основа — «коробка» дома
  • Устройство фундамента
  • Устройство оснований крылец и террас
  • Возведение ограждающих и несущих стен дома, перегородок
  • Монтаж перекрытий и кровли
Под чистовую отделку
  • Утепление стен
  • Утепление перекрытий и фундамента
  • Отделка фасада
  • Установка окон, входных дверей и гаражных ворот
  • Устройство декоративных конструкций
  • Устройство инженерных сетей внутри дома (включая котельное оборудование, вводные и распределительные устройства электропитания)
  • Оштукатуривание стен
  • Устройство черновых полов
Под ключ
  • В этой стадии, дополнительно к предыдущей, мы создаем интерьер вашего дома согласно разработанному дизайн-проекту
Основа — «коробка» дома
Под чистовую отделку
Под ключ